Cookies wymagane do prawidłowego wyświetlania i działania strony.
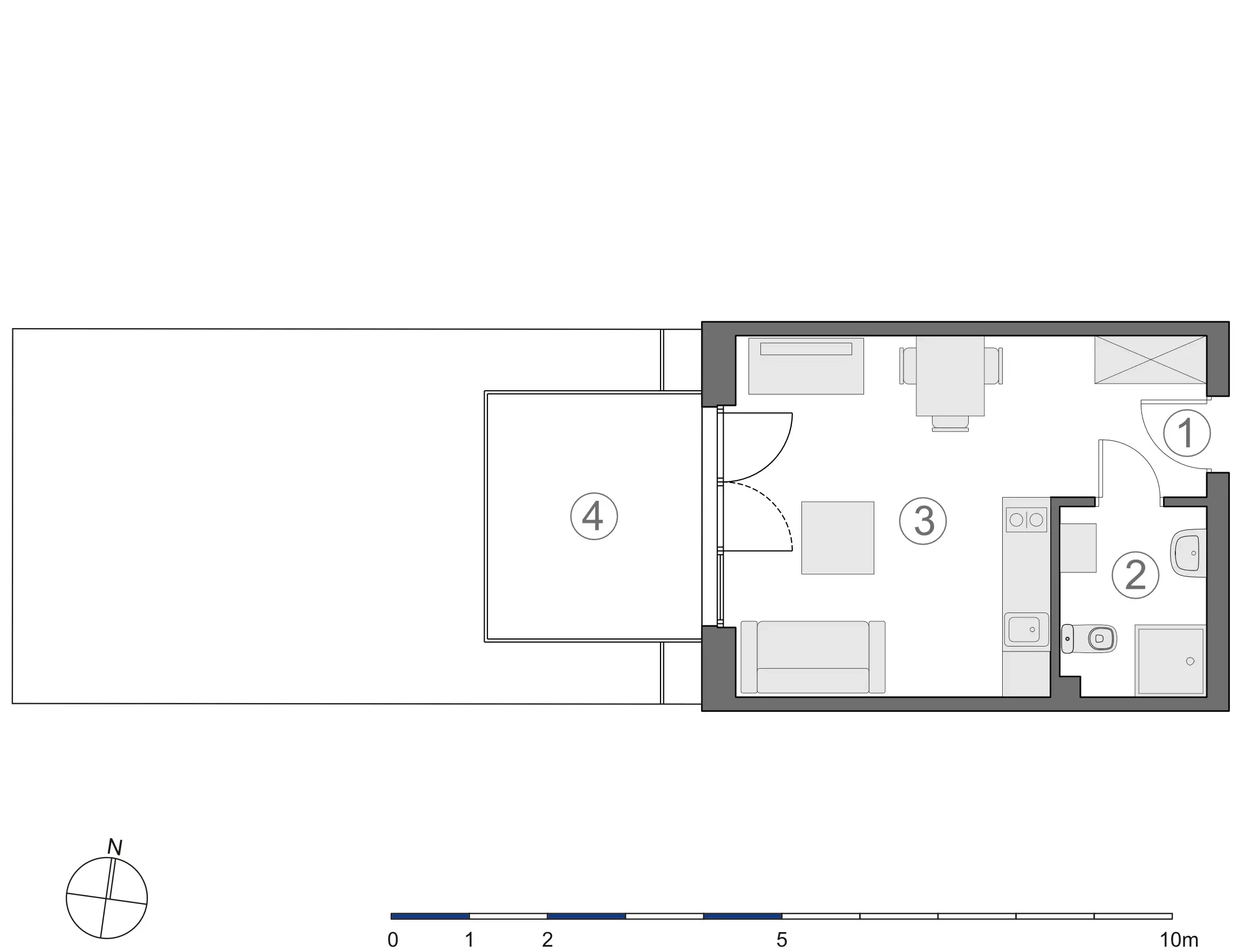
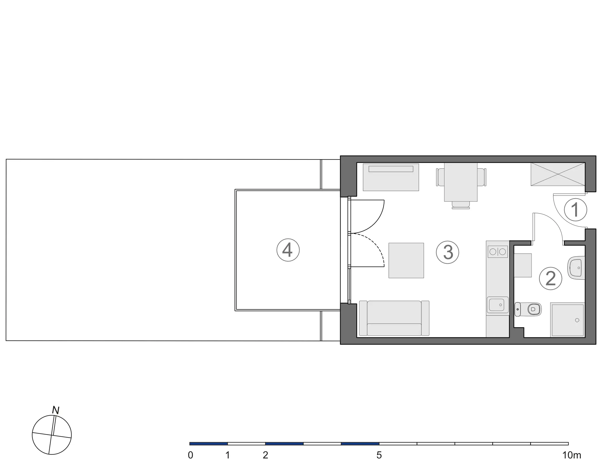
Apartament na sprzedaż nr 3-A.0.2
Powierzchnia apartamentu 28.59 m²
119
Apartamentów
blisko morza
126
Miejsc parkingowych
dla mieszkańców
60
Wybór powierzchni
Od 27 do 60 m²
Gotowe do zamieszkania apartamenty
Nad Morzem Bałtyckim
Na sprzedaż w Pogorzelicy mamy obecnie również ofertę lokali z opcją wykończenia pod klucz. Dzięki współpracy z firmą Lafrentz, istnieje możliwość zamówienia takiej usługi u naszego partnera, który ma na koncie setki takich realizacji dla osób prywatnych, deweloperów i firm. Sami mogą Państwo wybrać zakres wykończenia – od standardowego, który pozwala urządzić się „po swojemu”, po pakiety premium, które dają okazję wprowadzić się do gotowego, świetnie urządzonego wnętrza. Pomoc doświadczonych wykonawców i architektów wnętrz znacznie upraszcza proces urządzania swojego apartamentu nad morzem w Pogorzelicy.
Skontaktuj się z nami, jeśli chcesz poznać szczegóły

